Продажа дома

Белгородская область, Строитель, ул Ореховая

110 м²
Площадь
1
Этажность
15 сот
Площадь участка

7 400 000 ₽

67 273 ₽ за м²

ID объявления 12142213

Поделиться

Добавить в избранное

Арт. 88665351. Прекрасный дом от застройщика в развитом уютном массиве !
Продажа от ЮРЛИЦА!
Подходит по семейную, ИТ и сельскую ипотеки, а также все виды сертификатов и спецсчетов по переселению!!!

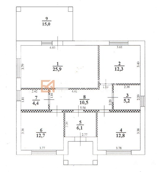
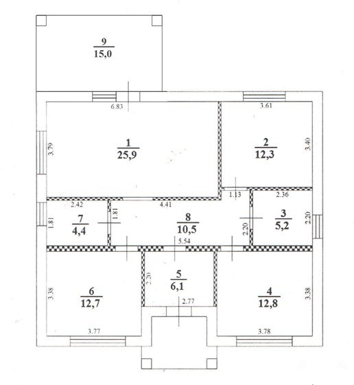
В доме 3 спальные комнаты, просторная кухня-гостиная с выходом на террасу, ванная комната, котельная + второй санузел, коридор.

Фундамент: ленточный глубиной 1, 2 м.
стены: блок Аэробел + кирпич облицовочный.
Крыша-металлочерепица утеплена в 3 слоя.
Качественные пластиковые окна. Все коммуникации заведены в дом.

Отделка white box (белые стены). По согласованию можно сделать под ключ!

Площадь дома 95 кв.м + 15 кв.м терраса.

Строительство по всем строительным нормам. Юридически чистые документы, быстрое оформление.

ЗВОНИТЕ! Показ в удобное для Вас время! А так же, есть несколько других домов в этом районе!

Гарантия юридической чистоты сделки! Бесплатное одобрение ипотеки!

Дата обновления: 16 октября 2025